Продам 1-кімнатну квартиру, Киевская обл., Киев, Голосеевский р-н, Михайла Максимовича вул.
![]() |
|
БЕЗ КОМІСІЇ - НИЗЬКИЙ 12 поверх !
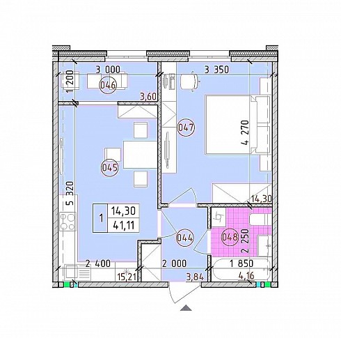
Розташування : ЖК Нова Англія/Новая Англия Поряд : ЖК Парк Ленд Parkland та ЖК LIKO-GRAD Perfect Town Важливі деталі : 1)Популярний НИЗЬКИЙ поверх ! 2)Є ВИБІР ПАРКІНГІВ поряд з БУДИНКОМ 3)БЕЗ КОМІСІЇ та БЕЗ додаткових витрат ! 4) ВІКНА НА Київ 5)Супер ціна ! Недалеко розташовані : ЖК Парк Ленд Parkland /ЖК Паркленд та ЖК LIKO-GRAD Perfect Town/ Ликоград Перфекттаун, Лико Град/Ліко Град, ЖК Амурский /ЖК Амурський, ЖК Чотири сезони, ЖК Венеция/ЖК Венеція Додаткова інформація: квартира Кімнат-1 Поверх-12 Поверховість-21 Загальна площа-42.00 Жила площа- Кухня- |
|
Цена: 68000 USD
|
|
Контакнтый телефон: 0933874424(XXX)XXX-XXXX
|



